All goods despatched from the UK with fast fully tracked hassle free delivery



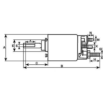
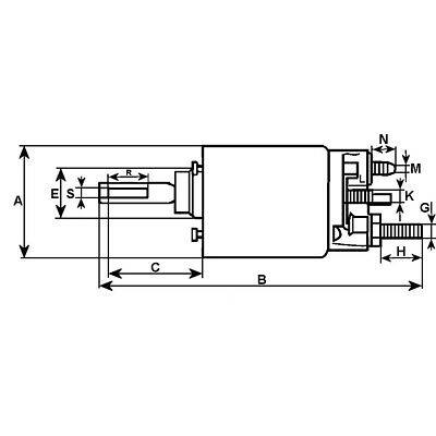
STARTER MOTOR SOLENOID SND12791 231927 Bracket M Coil bolt M8 D OD/cover 56.75 G B+ M10 H Height/B+ 16.00 I Kl. 15a/mm M5 K Kl. 50/mm M5 N Coil bolt l. 15.75 J Width/kl. 15a 10.00 L Width/kl. 50 7.00 Bracket No./terminals 4 Electrical specifications Voltage 12 Physical specifications A OD 57.00 B Total length 174.50 Further information Remarks Relay terminal: M5. Servicing 28MT Further information Drawing No28 DELCO REMY FORD GMC BOBCAT JOHN DEERE CUMMINS HYSTER CLARK PERKINS DEUTZ MELROE ALLIS CHALMERS LISTER PETTER FITS 28MT TYPE CROSS REFERENCE OEM REFERENCE DELCO/FORD 10457061 DELCO/FORD 10457151 FITS UNIT DELCO/FORD 10479606 10479607 10479613 10479617 10479618 10479620 10479628 10479630 1113271 1113283 1113285 1113288 ANOTHER HIGH QUALITY WOOD AUTO PRODUCT
- * All products come with 12 months warranty unless otherwise stated.
- * Please contact us with any issues so we can provide a solution for you.