All goods despatched from the UK with fast fully tracked hassle free delivery








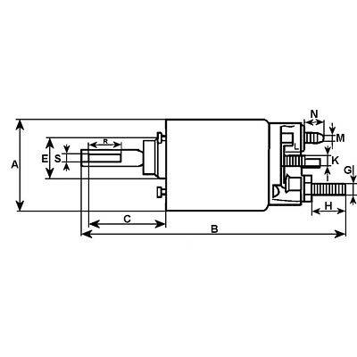
BOSCH TYPE STARTER MOTOR SOLENOID 12V SND14612 138877 Bracket M Coil bolt M8 D OD/cover 45.85 E ID/cover 24.25 G B+ M8 H Height/B+ 14.60 K Kl. 50/mm M6 N Coil bolt l. 9.55 L Width/kl. 50 14.80 Bracket No./terminals 3 Electrical specifications Voltage 12 Physical specifications A OD 52.00 B Total length 130.55 Further information Remarks Cap: Cargo 137349. CROSS REFERENCE OEM REFERENCE BOSCH 0331304001 BOSCH 2339304001 FITS UNIT BOSCH 0001106011 0001106020 0001107016 0001107040 0001107041 0001107046 0001107059 0001107082 0001108121 0001108122 0001108155 0001108168 ANOTHER HIGH QUALITY PRODUCT
- * All products come with 12 months warranty unless otherwise stated.
- * Please contact us with any issues so we can provide a solution for you.